產品型號:ZAMDW(P/M)
公稱通徑:DN20~200mm
壓力范圍:PN1.6~6.4MPa
使用溫度:低溫型-40~-196℃、超低溫型-196~-254℃
制造標準:JB/T7248-1994
技術標準:GBT 24925-2016
法蘭標準:GB/T12234-2007
結構長度:GB/T12221-2005
閥門材質:不銹鋼、CF3M、CF8M
閥體形式:直通單座球形閥
產品概述
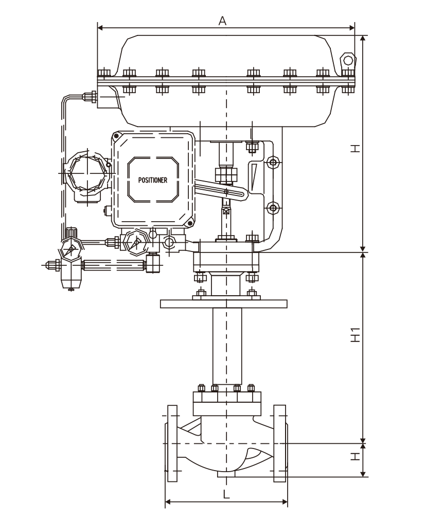
氣動薄膜低溫調節閥是由多彈簧氣動執行機構和單座調節閥閥體以及加長桿三部分組成。閥體、配件、加長桿全部采用特殊低溫處理,主要用于(零下-40℃~-196℃~-254℃)低溫介質,例如LO2、LN2、LAr、LNG、LPG、LC2H4液氧、液氮、液化天然氣、液態二氧化碳、液態丙烷、液態甲烷等的工業儲罐或者管道上,由閥門定位器給出信號輸入(4~20mA)到氣動薄膜執行機構的氣室,產生推力,通過連接桿件帶動閥芯,使閥芯位置和流通截面積變化,實現對介質流量的操控和調節。
主要連接尺寸
| 公稱通徑 DN(mm) | 20 | 25 | 32 | 40 | 50 | 65 | 80 | 100 | 125 | 150 | 200 | |
| L | PN16/25 | 181 | 184 | 200 | 222 | 254 | 276 | 298 | 352 | 410 | 451 | 600 |
| PN40 | 194 | 197 | 200 | 235 | 267 | 292 | 317 | 368 | 425 | 473 | 610 | |
| PN64 | 206 | 200 | 210 | 251 | 286 | 311 | 337 | 394 | 440 | 508 | 650 | |
| H | PN16/25 | 52.5 | 57.5 | 75 | 75 | 85.5 | 92.5 | 100 | 110 | 142.5 | 158 | 170 |
| PN40 | 52.5 | 57.5 | 75 | 75 | 82.5 | 92.5 | 100 | 117.5 | 150 | 167.5 | 187.5 | |
| PN64 | 65 | 40 | 85 | 85 | 90 | 102.5 | 107.5 | 125 | 172.5 | 195 | 207.5 | |
| H1 | 根據實際現場較低溫度來設計氣動低溫調節閥加長桿尺寸 | |||||||||||
| H2 | 298 | 298 | 298 | 298 | 298 | 380 | 380 | 380 | 510 | 510 | 510 | |
| H3 | 180 | 180 | 180 | 180 | 180 | 236 | 236 | 236 | 310 | 310 | 310 | |
| L1 | 289 | 289 | 289 | 289 | 289 | 347 | 347 | 347 | 476 | 476 | 476 | |
| A | 282 | 282 | 282 | 282 | 282 | 360 | 360 | 360 | 470 | 470 | 470 | |
| D | 220 | 220 | 220 | 220 | 220 | 270 | 270 | 270 | 320 | 320 | 320 | |